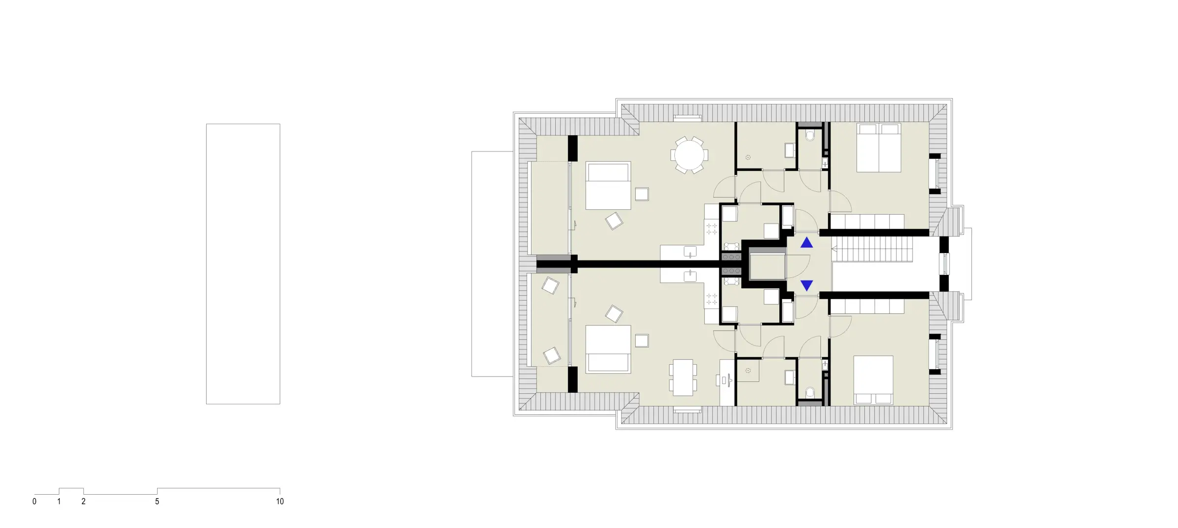
6 Villa-appartementen

Op een karaktervolle locatie wordt een exclusief appartementengebouw met zes wooneenheden ontwikkeld. De oorspronkelijke bebouwing op deze plek is verloren gegaan door brand, wat ruimte biedt voor een hoogwaardige en toekomstgerichte herinterpretatie van de locatie.

Het nieuwe woongebouw, ontworpen als een klassieke villa, sluit zorgvuldig aan bij de schaal, ritmiek en uitstraling van de directe omgeving. Er ontstaat een nieuw, beeldbepalend en markant gebouw dat een duidelijke kwaliteitsimpuls geeft aan de bestaande omgeving. De oriëntatie op het tegenoverliggende plein versterkt het statige en representatieve karakter.

De privéruimten van de appartementen zijn gericht op het open landschap aan de achterzijde, wat zorgt voor rust, privacy en een sterke relatie met het groen.

Duurzaamheid vormt een integraal onderdeel van het ontwerp, met nadrukkelijke aandacht voor energiezuinigheid en toekomstbestendig gebruik. Daarnaast wordt natuurinclusief bouwen toegepast, met aandacht voor biodiversiteit door de integratie van groene elementen zoals nestvoorzieningen en beplanting.

De villa-appartementen combineren comfort, esthetiek en duurzaamheid in een zorgvuldig ontworpen woonconcept. Het resultaat is een klassiek én eigentijds gebouw met een markante uitstraling, waarin kwaliteit en leefbaarheid centraal staan.